- Conselleria de Sanidad GVA
Emplazamiento
- Calle Pai Sur17 Secundaria 5 1(A) 12500 Vinaros, Catellón De La Plana.
Categoría
- Centro Sanitario
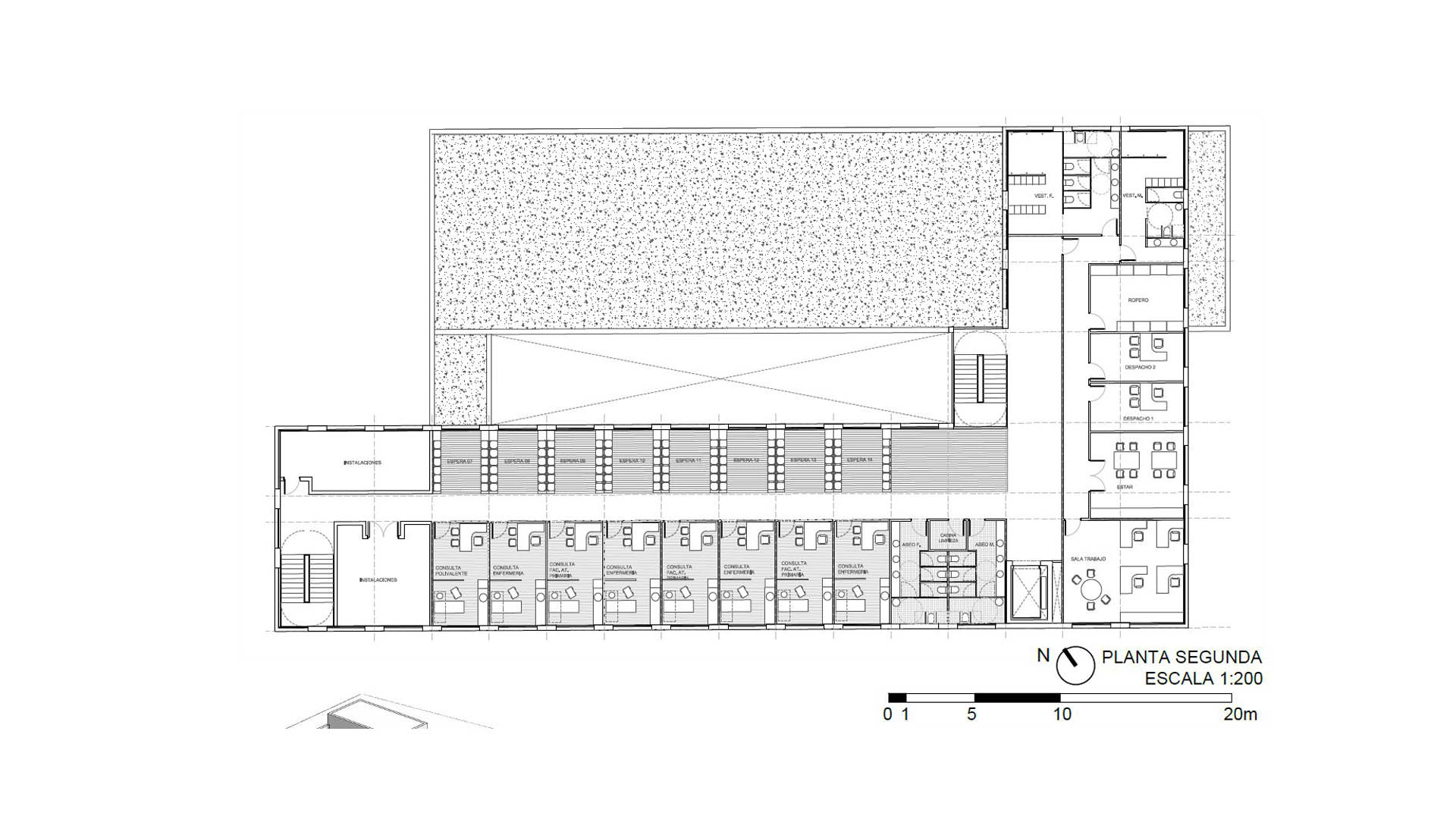
Centro de Salud en Vinaroz
Centro de Salud en Vinaroz. La organización del edificio sigue un esquema que ya hemos aplicado en otros centros sanitarios, con un planteamiento claro que optimiza las circulaciones, la zonificación de las áreas médicas y las relaciones entre ellas. La imagen exterior es nítida y coherente con la de un edificio público de equipamiento sanitario. Fase: Anteproyecto.








