- Residencial Parc Central Torrent COOP V
Emplazamiento
- Avenida olímpica 58
- Torrent, Valencia
Categoría
- Residencial
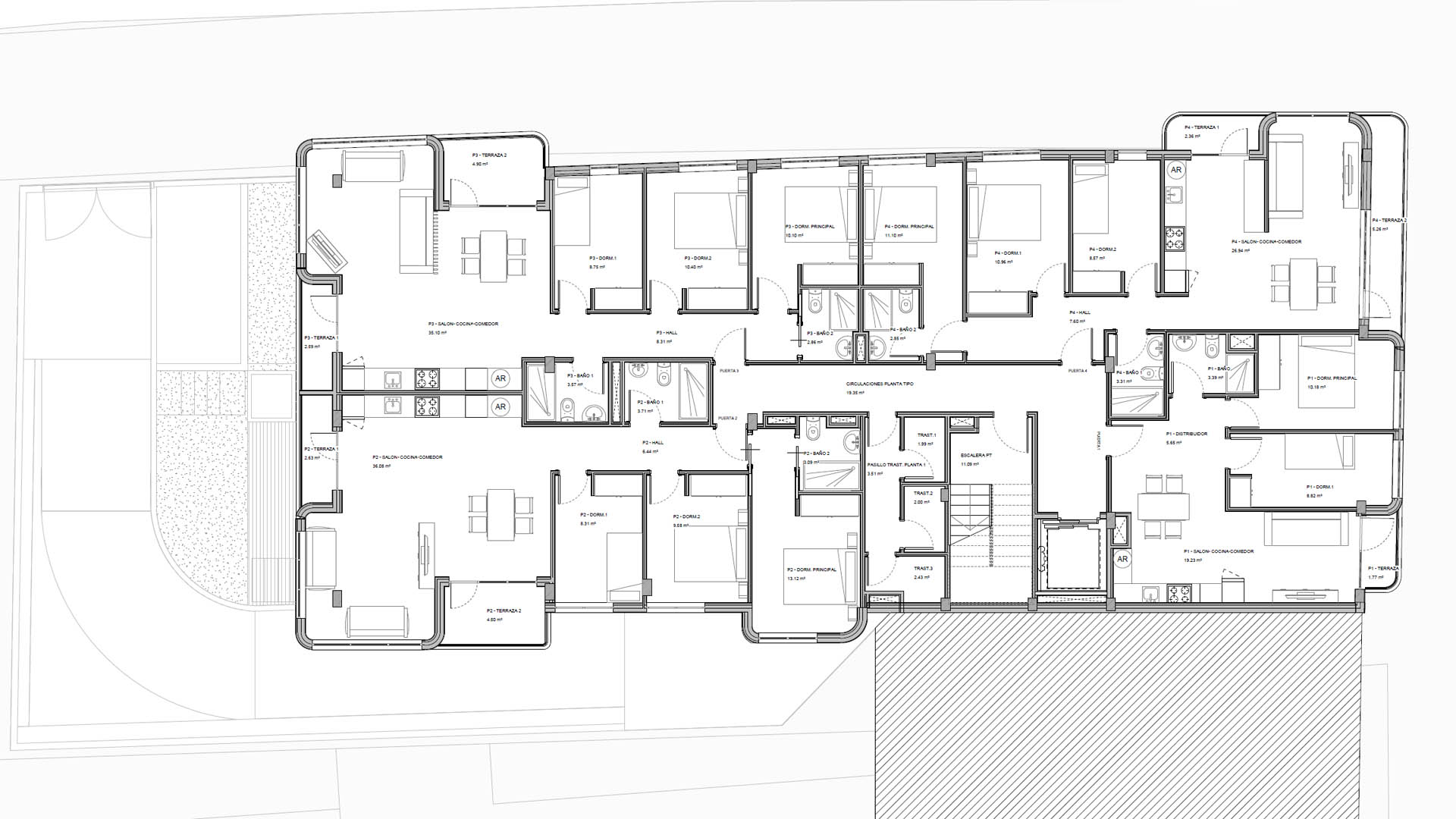
Edificio de 22 viviendas, oficinas en planta baja y aparcamiento en sótano.
El edificio se desarrolla en planta baja, entreplanta, cinco plantas tipo y planta ático. En las plantas sótano se ubican plazas de aparcamiento, trasteros y recintos para instalaciones.
En la planta baja se sitúan los accesos principales, tanto peatonales como de vehículos. Uno de los zaguanes da acceso a las plantas superiores e inferiores de las viviendas. En esta misma planta se disponen las zonas libres de edificación de uso privado, que incluyen áreas de estancia, piscina y aparcamiento para bicicletas. El segundo zaguán permite el acceso a las dos plantas destinadas a oficinas.
Las viviendas están compuestas por 2 o 3 dormitorios, salón-comedor, cocina y dos baños.









