- Ayuntamiento de El Paso
Emplazamiento
- c/ Antonio Pino 7,
- 38750 El Paso, La Palma
Categoría
- Equipamiento Publico
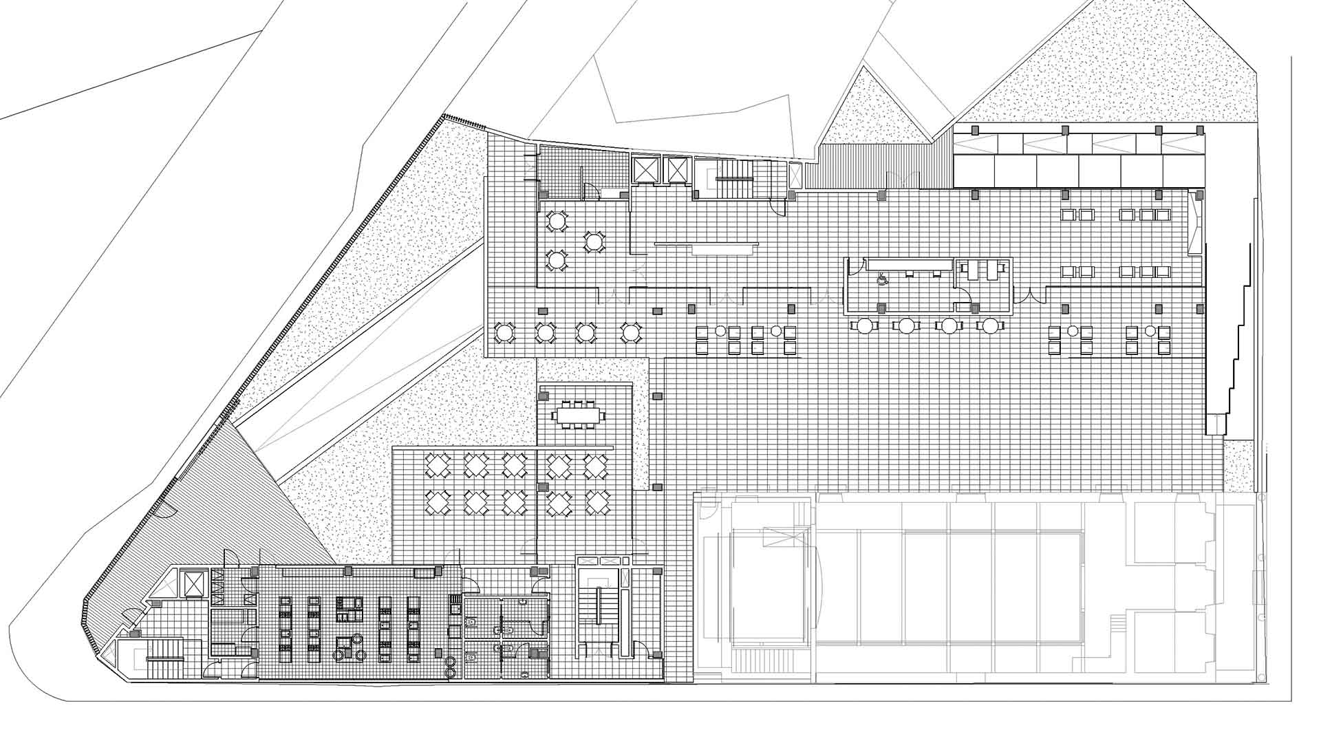
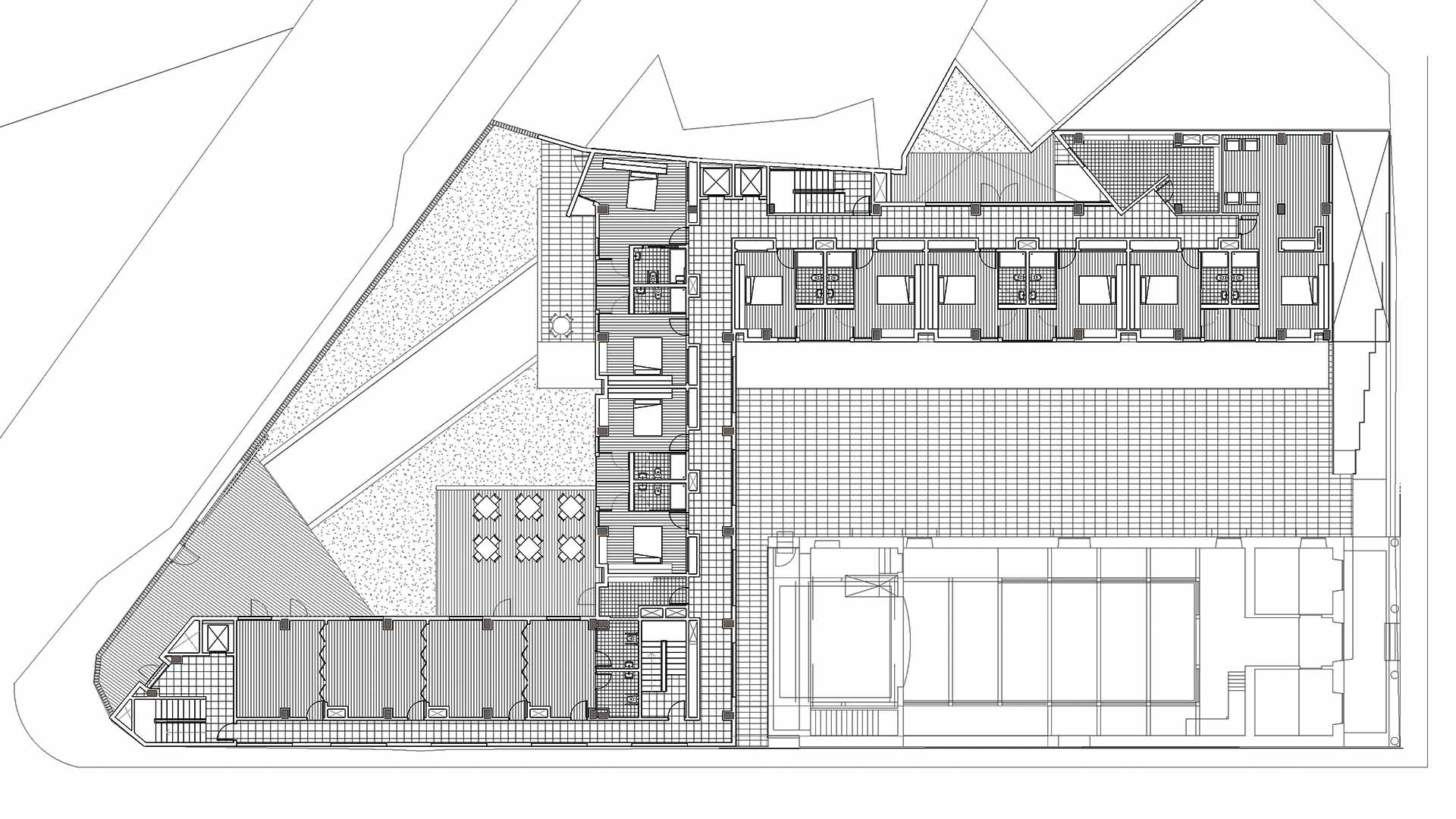
Construcción de Hotel Escuela Monterrey, en El Paso.
Se proyecta, en la parcela del antiguo Hotel Monterrey, en el Paso, un Hotel y una Escuela de Hostelería que estará integrado por tres espacios interiores principalmente: hotel, taller-escuela, teatro.
El edificio se inserta de forma que queda integrado en la trama urbana y con la plaza, favoreciendo la integración en la comunidad y permitiendo, al mismo tiempo, el desarrollo del programa de la forma más adecuada para su funcionalidad y el disfrute por parte de todos los usuarios.









