- Paradores de turismo de España S.A
Emplazamiento
- Plaza de San Marcos, 7. 24001, León.
Categoría
Reforma integral del Parador de Turismo
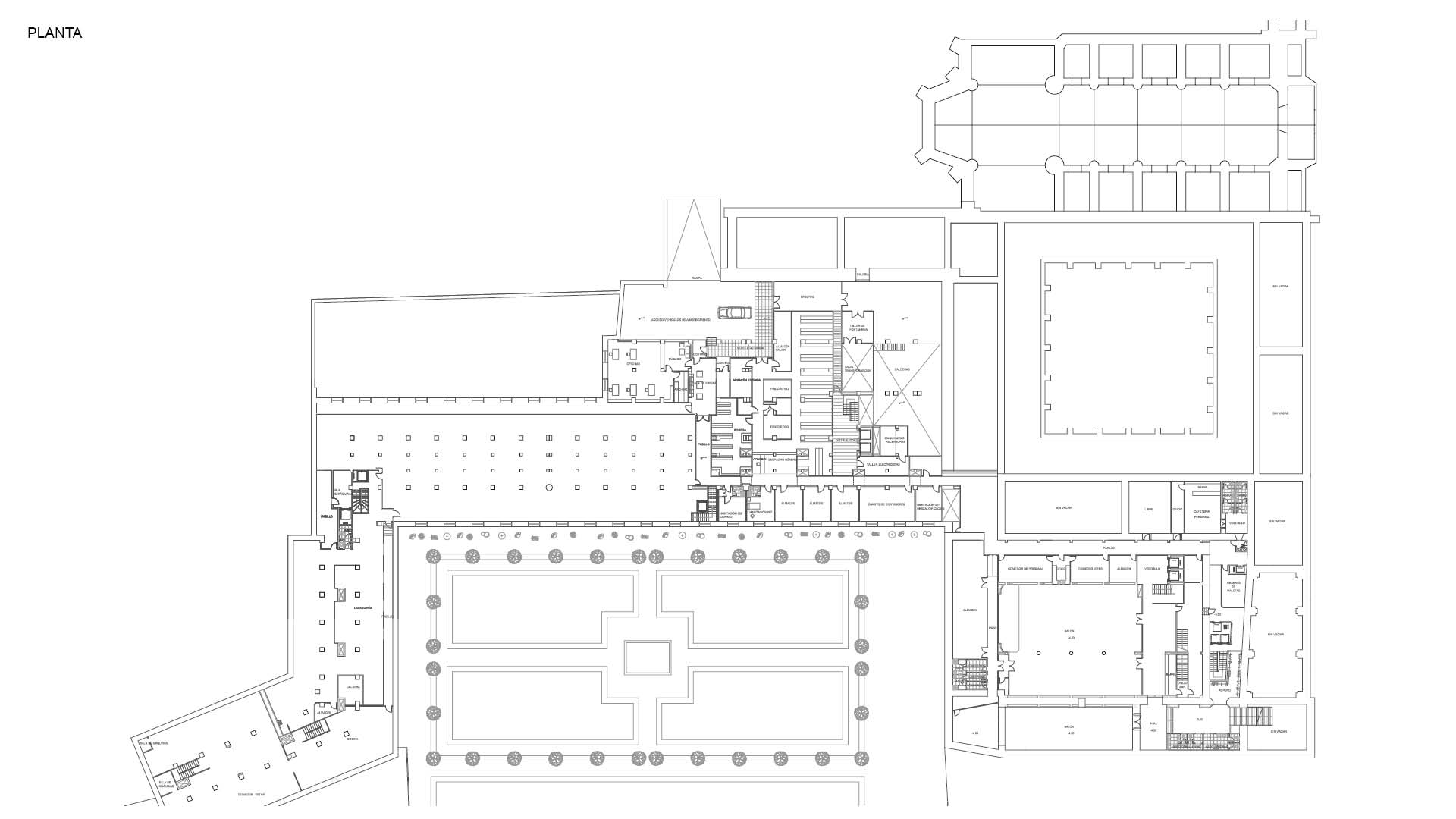
La propuesta que presentamos al concurso de ideas para la restauración del Parador San Marcos es una intervención importante que altera el edificio histórico, eliminando en parte los elementos que ocultan el claustro que existió en la segunda edificación histórica, y que básicamente están ocupados por las cocinas generales y grandes salas de reunión y eventos que tienen una importancia capital en el conjunto.
Nuestra propuesta proponía y hacía hincapié en la recuperación y legibilidad del edificio, pasando por la recuperación del claustro, a nuestro entender no solo dejando un patio o espacio abierto en el interior de este, sino rehaciendo el concepto de claustro, que conlleva dejar un patio rectangular debidamente ajardinado y rehacer el pasillo o deambulatorio perimetral de acceso a las piezas perimetrales.







