Conselleria de Sanidad Comunidad de Valencia.
Emplazamiento
Orihuela Alicante Comunidad de Valencia
Categoría
Sanitario
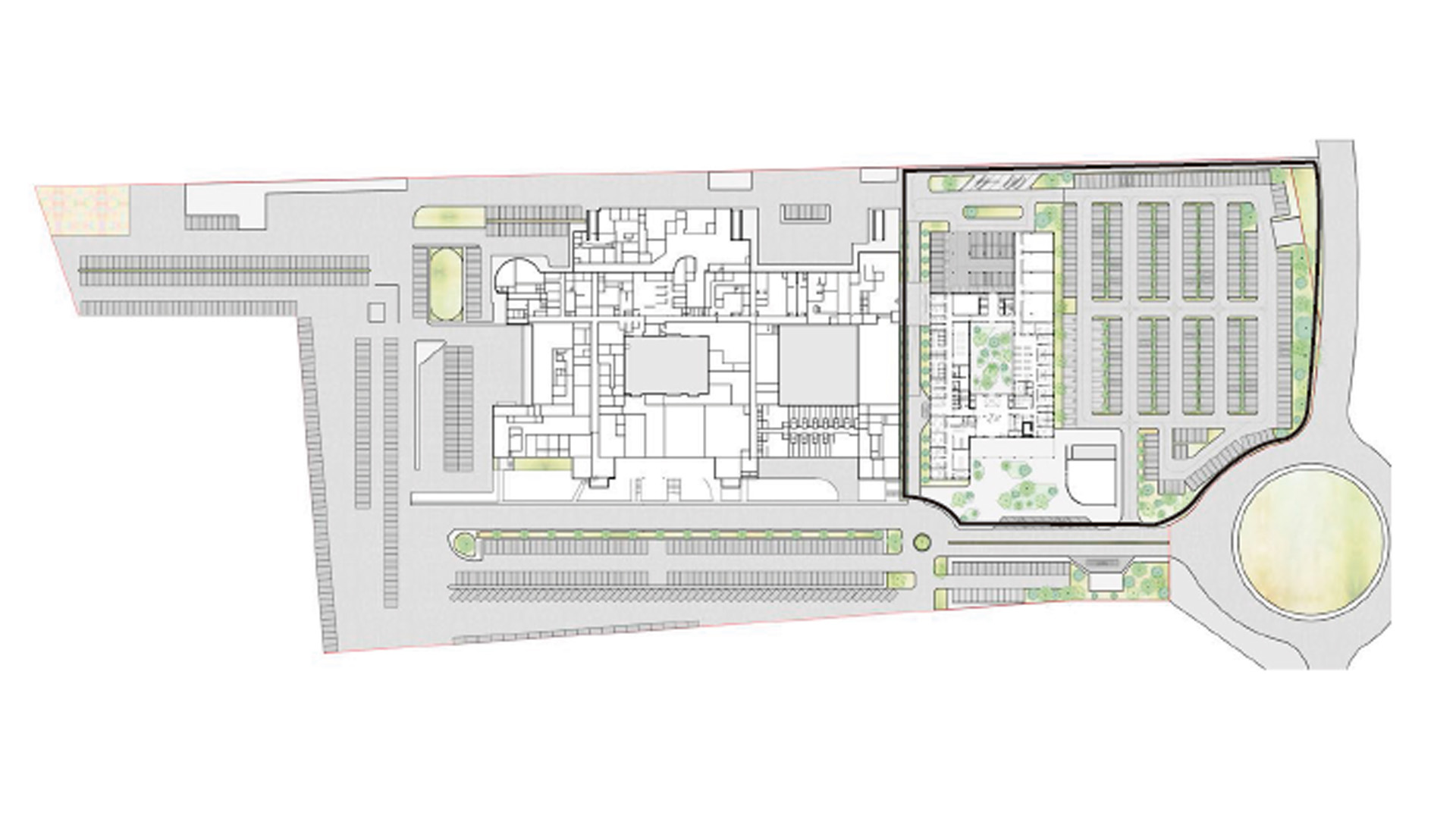
Proyecto para la ampliación del Hospital de Orihuela
Proyecto para la ampliación del hospital de Orihuela, que hemos realizado conjuntamente con el equipo de arquitectura “MORPH” y la colaboración de “Sener” En este proyecto, redactado a nivel de anteproyecto, se ha resuelto adecuadamente el complejo programa funcional, en base a una tipología, y ordenación del programa funcional, en 4 bloques funcionales en torno a un jardín abierto, ya utilizada por nosotros en otros proyectos similares. Con una composición volumétrica compacta que minora las circulaciones y la articulación de los diferentes bloques y con una imagen sencilla y ordenada.








