- Ayuntamiento de Catarroja
Emplazamiento
- Av. Diputació, 16a,
- 46470 Catarroja, Valencia
Categoría
- Equipamiento Público
- Rehabilitación
Reforma y puesta en funcionamiento de la “La casa de la juventud”
El proyecto transforma un edificio de titularidad municipal —anteriormente utilizado como museo, taller, vivienda y garaje— en una Casa de la Juventud.
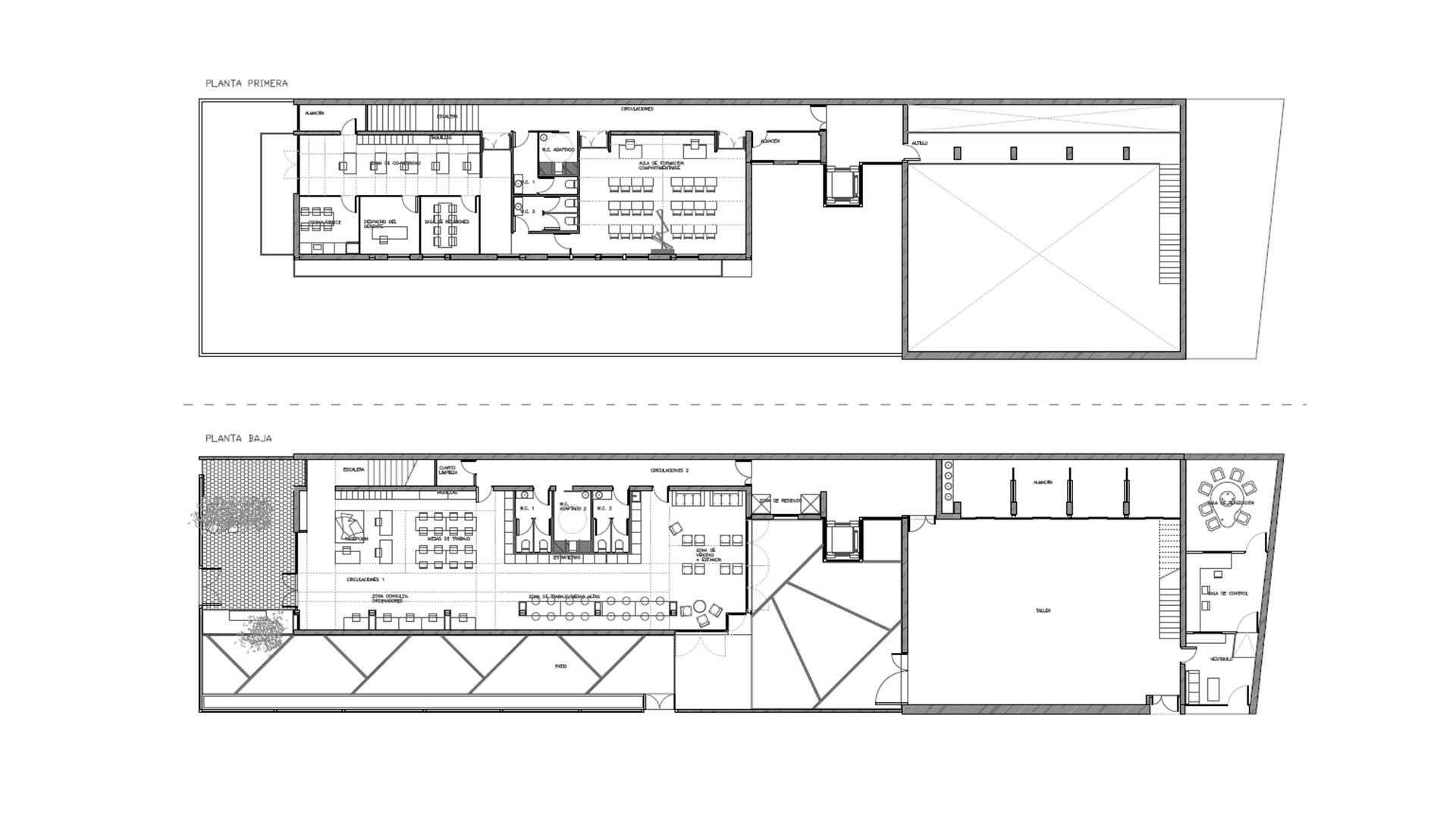
El acceso principal se sitúa en el extremo sur, desde la Avenida Diputación Provincial, a través de un espacio exterior ajardinado. Junto a la recepción, con tres puestos de atención al público, se ubica una zona de taquillas enfrentada a las mesas de trabajo. Se mantiene el carácter diáfano de la planta baja, que acoge áreas de consulta informática, mesas de trabajo, barras tipo bar y un espacio de estancia con máquinas expendedoras. Un pasillo conecta indirectamente el núcleo de aseos con la nueva sala polivalente, habilitada en el antiguo taller de artes plásticas.
La planta primera se conecta al acceso principal mediante una escalera existente y una pasarela con escalera hacia la sala polivalente. Para garantizar la accesibilidad universal, se incorpora un ascensor en la confluencia del antiguo museo y vivienda con el taller. En esta planta se desarrollan las zonas de coworking y una sala multiusos divisible, separadas por un núcleo de aseos y un pasillo en “L”.
La sala polivalente mantiene su vocación de espacio versátil para conferencias, exposiciones, charlas o proyecciones, incluyendo una zona de almacenamiento de mobiliario. Además, cuenta con un acceso exterior secundario que le permite operar de forma autónoma respecto al resto del edificio.











