- Ayuntamiento de Alaquàs
Emplazamiento
- C/ Lanjarón, 6. 46970. Alaquàs, Valencia
Categoría
- Centros Educativos
Reforma y ampliación CEIP Sanchís Almiñano
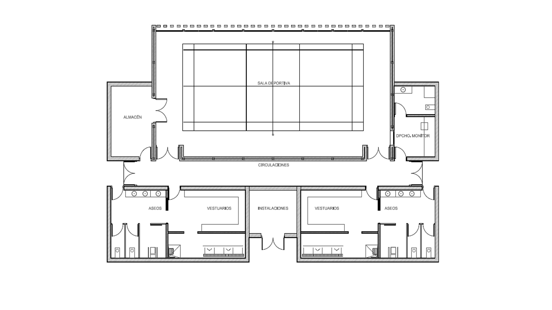
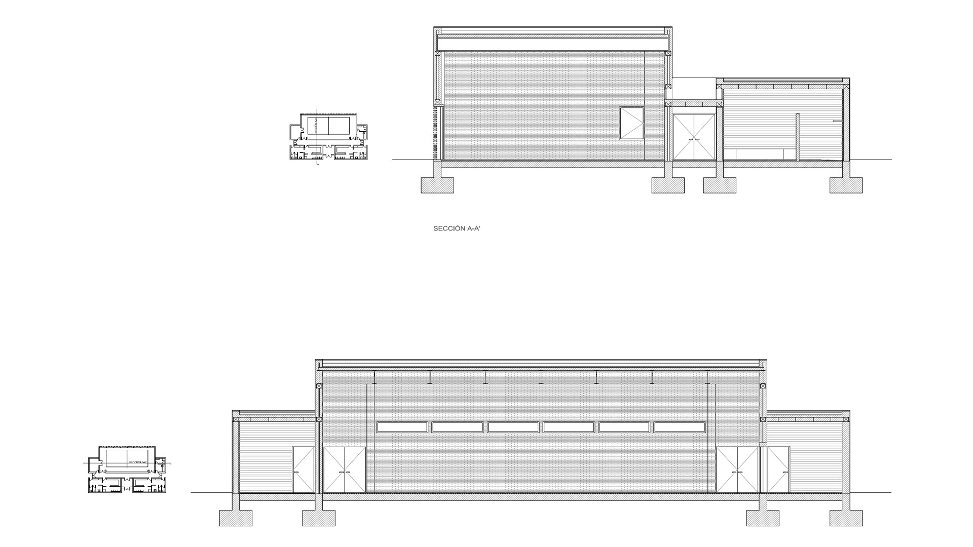
Se plantea desde la Propiedad la necesidad de instalar un ascensor, mejorando la accesibilidad de todas las aulas existentes en el colegio público. También se prevé el cambio de ventanas exteriores, la ejecución de la instalación de red de datos, la ejecución de la red eléctrica en el Centro de Infantil y la instalación de radiadores. Por último, se incluye el cierre y definición de la parcela y la realización de un gimnasio cubierto en la zona deportiva.







