- Gobierno autónomo de Castilla la Mancha
Emplazamiento
- IES Nº2 Miguel Turra
- Ciudad Real. Castilla la Mancha.
Categoría
- Centros educativos
Instituto de Educación Secundaria
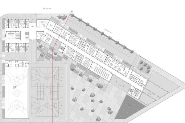
Se trata de la ejecución de un Colegio con un amplio programa funcional, desarrollado en fase de anteproyecto, que se diseña de forma racional y sencilla, con una configuración lineal, circulación central y dos áreas funcionales, con dos bloques diferenciados que se articulan por el hall de entrada principal al edificio, porque el que se accede también a todo el patio libre, optimizando la parcela disponible.






