Cliente
  • CIEMAT – Centro de Investigaciones Energéticas, Medioambientales y Tecnológicas
Emplazamiento
  • Sector SUBS-IT, Parque Metropolitano Industrial y Tecnológico
  • Escúzar, Granada.
Categoría
  • Equipamiento Público

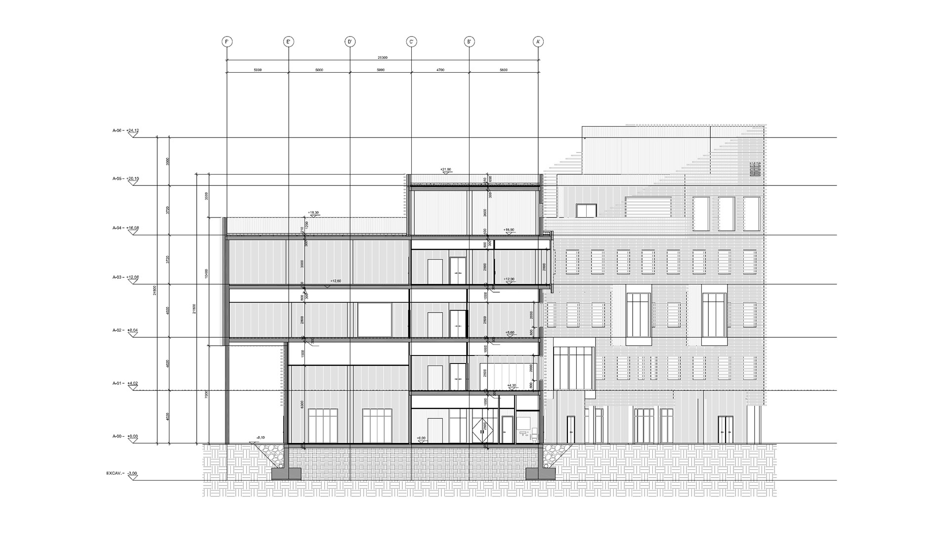
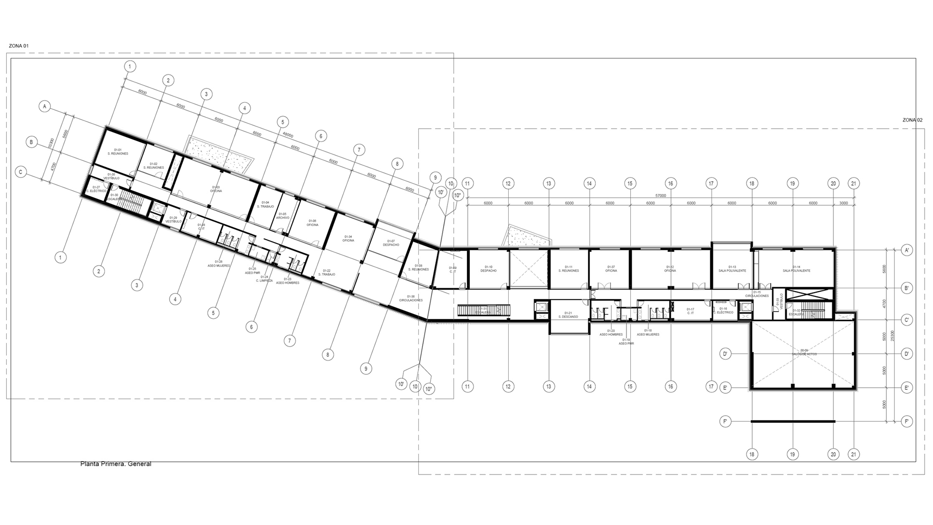
Edificios de Administración y visitas, Control de Accesos, Almacén y Urbanización para el Proyecto DONES (Demo-Oriented Neutron Source) en el Parque Metropolitano Industrial y Tecnológico de Escúzar

Nuestro equipo técnico ha llevado a cabo las tareas de ejecución  de las obras.

El programa del edificio de Administración recibido por la propiedad consiste en crear 160 puestos de trabajo de oficina para los empleados del proyecto DONES, 12 salas de reuniones, que también serán divisibles y una serie de espacios polivalentes para las actividades relacionadas con los visitantes al proyecto.

Por lo que respecta al edificio de control de accesos se refiere a una sala de espera para tramitar la entrada de los visitantes, una sala de control y una sala de vigilancia desde la que se controla visualmente el acceso de peatones y vehículos a la planta del proyecto DONES. El edificio dispone además de zona de servicios formada por unos aseos, cocina y dos cuartos de instalaciones.

Por último, también se ha construido una nave almacén.