- Ayuntamiento de Los Realejos
Emplazamiento
- C/ San Agustín nº 59
- Los Realejos, Tenerife
Categoría
- Equipamiento Público
Reforma y ampliación del Teatro Cine
Se plantea una ampliación del espacio existente incorporando la superficie que actualmente ocupa el edificio anexo en el lado oeste y una redistribución de espacios interiores, ampliando aquellos que son considerados insuficientes y proponiendo nuevos que consideramos necesarios. Durante el proceso de diseño de espacios y disposición de plantas, se ha tenido un control exhaustivo de las cotas de los distintos niveles así como la altura máxima de edificación.
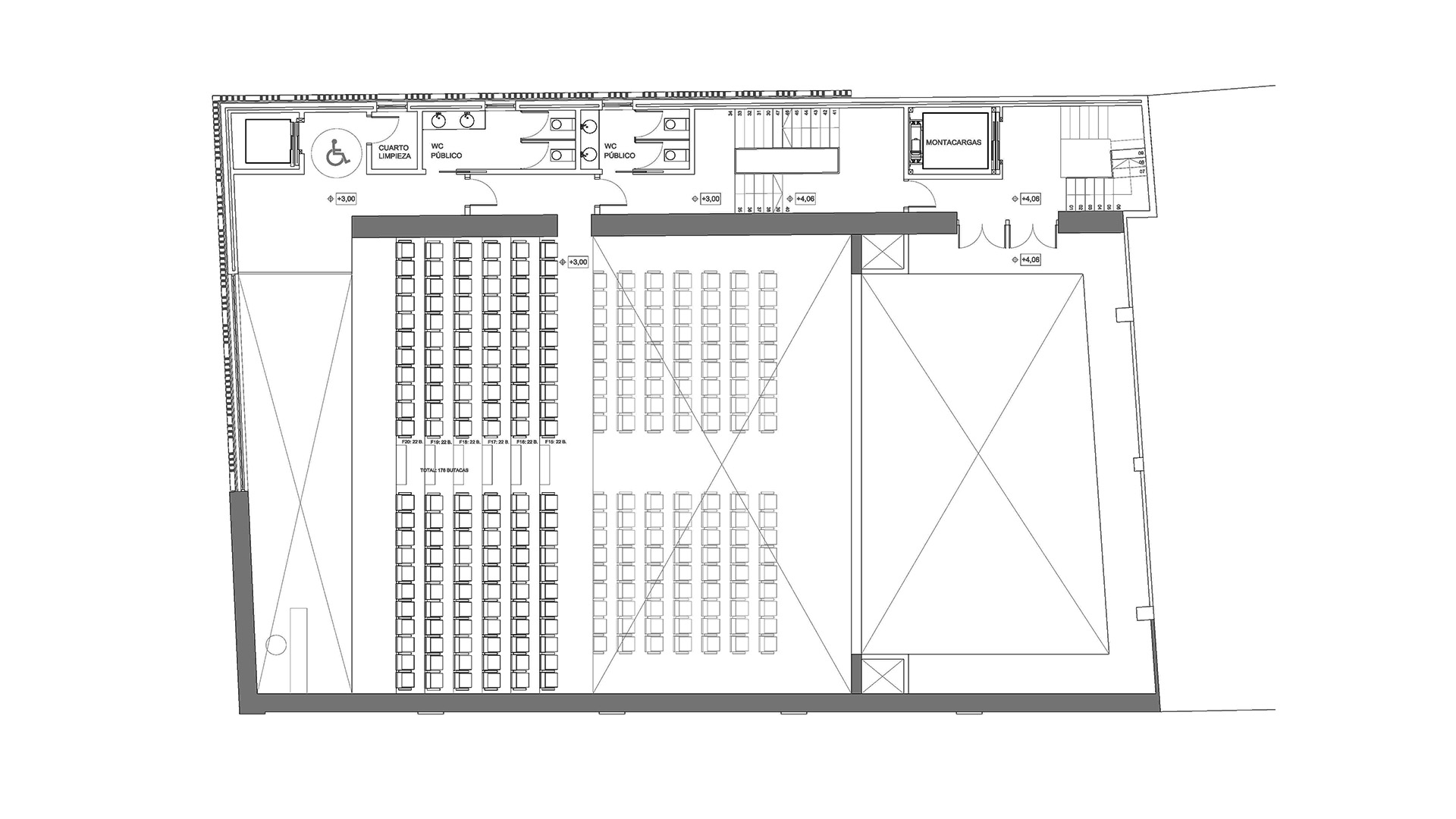
En planta baja, se mantienen los espacios de hall, taquilla y patio de butacas en la posición actual y se amplía el escenario hasta alcanzar los 8 metros transversalmente medidos desde el punto central del mismo. En lado oeste de la planta, se sitúan los aseos públicos masculino, femenino y adaptado, y el ascensor. Desde este punto, y a través de la escalera que comunica con la planta inferior, se accede al ascensor/montacargas y a un almacén. Al escenario se accede desde semisótano a través de una escalera en el lado norte, o a través del ascensor/montacargas. En esta cota y junto al escenario y al ascensor se ubica un almacén y el acceso de mantenimiento a la cubierta.
En planta primera se dispone de un graderío, el cual amplia el espacio destinado actualmente a tal efecto; y aseos masculino y femenino de planta y dos pequeños almacenes.








